Elle Hair Studio - Sfeerbeeld 1

Elle Hair Studio

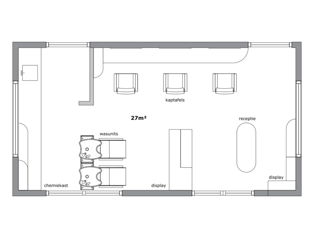
Jaar: 2025 Afmetingen: 27m2 Type: kapsalon
Overzicht

Elle Hair Studio is een moderne en rustige salon waarin comfort en functionaliteit centraal staan. Door het gebruik van zachte groentinten, houtaccenten en veel licht heeft de salon een frisse en uitnodigende uitstraling.

Ondanks dat het om een compactere ruimte gaat, is deze optimaal benut. Door een slimme indeling zijn ontvangst, styling en wasruimte logisch en efficiënt in elkaar overgegaan. De verlichte spiegels geven de stylingplekken een luxe uitstraling en zorgen tegelijkertijd voor een prettige werkplek. Dankzij doordachte opbergoplossingen blijft de salon overzichtelijk, praktisch en ruimtelijk aanvoelen.

Maatvoering
Plattegrond - Elle Hair Studio - Hero Vakkappers
Indeling
Isometrie - Elle Hair Studio- Hero Vakkappers
Moodboard
Moodboard - Elle Hair Studio - Vakkappers

Elle Hair Studio

Ook een kleinere ruimte omtoveren tot een complete salon?

Wij denken graag met je mee over een slimme en stijlvolle inrichting. Neem gerust contact met ons op.

Ook interessant