Salon Bellevue - Sfeerbeeld 4

Salon Bellevue

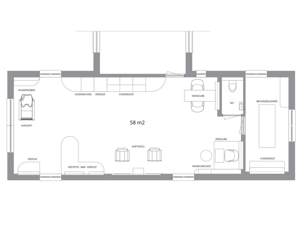
Jaar: 2025 Afmetingen: 58m2 Type: kapsalon
Overzicht

Salon Bellevue is een stijlvolle salon aan huis waar comfort en functionaliteit mooi samenkomen. De ruimte is zo ingericht dat er professioneel gewerkt kan worden, terwijl het persoonlijke en rustige karakter van een thuissalon behouden blijft.

De salon is van alle gemakken voorzien. Er is goed nagedacht over de indeling en praktische oplossingen, zoals een op maat gemaakte kast waarin de wasmachine en droger netjes zijn weggewerkt. Hierdoor blijft de ruimte overzichtelijk en strak, zonder dat er wordt ingeleverd op gebruiksgemak.

Maatvoering
Plattegrond - Salon Bellevue - Vakkappers
Indeling
Isometrie - Salon Bellevue - Hero Vakkappers
Moodboard
Moodboard - Salon Bellevue - Vakkappers

Salon Bellevue

Ook plannen om een salon aan huis te starten?

Wij denken graag met je mee over de inrichting en mogelijkheden. Neem gerust contact met ons op voor advies op maat.

Ook interessant